This spacious 3 bedroom semi detached home is positioned within a cul de sac setting just off the Tullygarley Road convenient to local amenities.
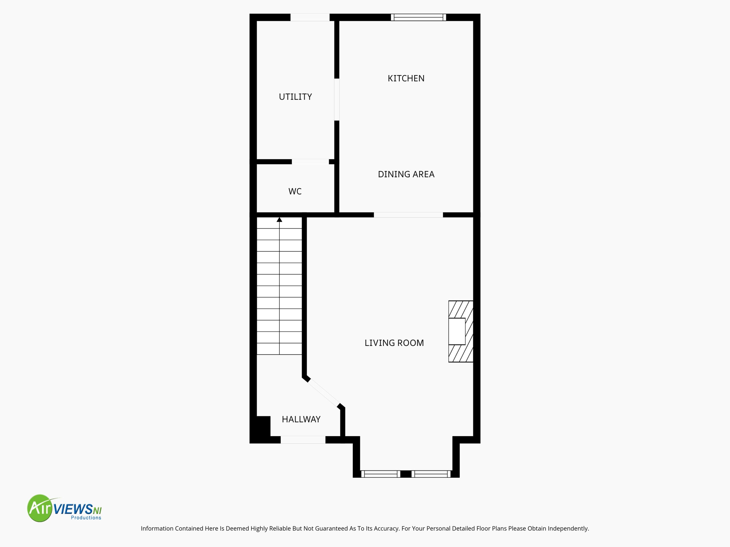
The accommodation within includes an entrance hall with cloaks/WC, lounge with open fireplace, generous kitchen/dining area and utility room to the ground floor while the first floor incorporates the master bedroom with ensuite shower room, two further bedrooms and main bathroom.
This particular property would be ideal as a first home or for a young family or indeed as an investment.
It is convenient to local bus routes, main commuter routes, Galgorm, main schools and a few minutes’ drive to the town centre.
No onward chain.
Hall:
Double glazed hardwood door to front, radiator, tiled floor, staircase to first floor, door into lounge
Lounge:
18’ x 12’4 (5.494m x 3.751m)
uPVC double glazed windows to front, radiator, laminated wooden flooring, cast iron fireplace with tiled hearth, painted surround, glazed French doors into kitchen/diner
Kitchen/Diner:
13’7 x 9’11 (4.147m x 3.028m)
Range of walnut shaker eye and low level units, 1 1/4 sink with mixer tap, electric oven, hob and extractor hood, part tiled walls, radiator, uPVC double glazed window to rear, door into utility room
Utility Room:
10’ x 5’7 (3.052m x 1.691m)
Range of walnut shaker eye and low level units, stainless steel sink with mixer tap, plumbed for washing machine, space for tumble dryer, oil boiler, tiled floor and part tiled walls, radiator, hardwood double glazed door to rear, door to ground floor wc
Ground Floor wc:
Low flush wc, pedestal wash hand basin, tiled walls and floor
Landing:
Laminated floor, radiator, built in cupboard, access to roof space
Bedroom 1:
11’10 x 9’8 (3.593m x 2.947m)
uPVC double glazed window to front, radiator, laminated flooring
Ensuite:
Low flush wc, wall mounted glass wash hand basin with mixer tap, step in shower cubicle with thermostatic shower, tiled floor and walls, uPVC double glazed window to front, radiator
Bedroom 2:
13’3 x 8’4 (4.045m x 2.527m)
uPVC double glazed window to rear, radiator, laminated flooring
Bedroom 3:
9’8 x 8’ (2.953m x 2.430m)
uPVC double glazed window to rear, radiator, laminated flooring
Bathroom:
Four piece suite comprising of bath, with mixer shower tap, low flush wc, wall mounted glass bowl wash hand basin with mixer tap, step in shower cubicle with thermostatic shower, tiled walls and flooring, uPVC double glazed window to side, chrome radiator towel rail
ADDITIONAL FEATURES
Enclosed paved rear garden with gated pedestrian access, outside lighting and tap
Oil fired central heating
uPVC double glazed windows
Lounge with open fire
Kitchen/diner
Utility room
Ground floor wc
Ensuite shower room
Four piece family bathroom
Chain free
https://find-energy-certificate.service.gov.uk/energy-certificate/9206-0387-0029-6400-0213























