This deceptively spacious detached 4-bedroom home offers a well-presented level of flexible accommodation arranged over two floors and is positioned within an established and popular area of the town just off the Portrush Road.
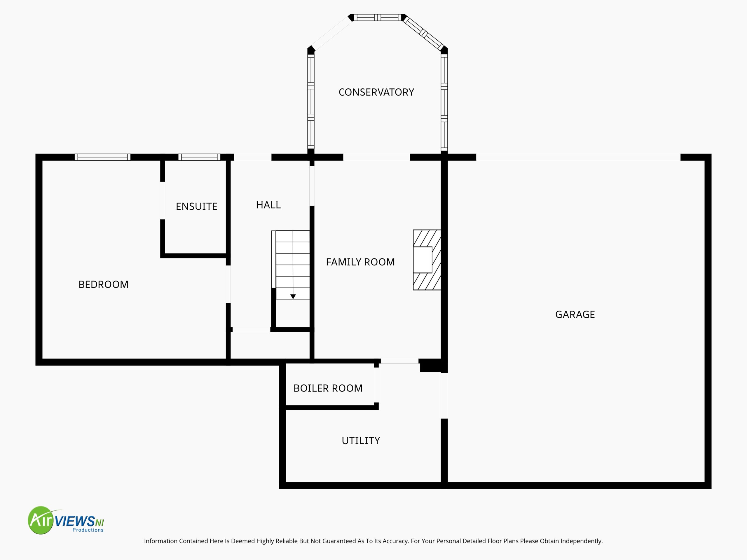
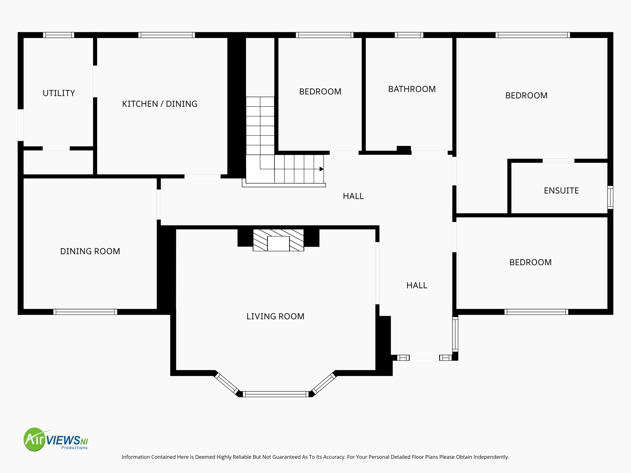
Internally, to the ground floor, the entrance hall which features wood flooring opens to a lounge with fireplace, a dining room, a kitchen with a seated corner aspect dining area, utility room and three bedrooms with the master bedroom including an ensuite. A staircase also off the hallway, leads to the lower ground floor which is ideal for someone wishing to have a self-contained living area if required. There is a hallway which accesses the gardens to the rear, kitchenette which opens to a generous integral garage with electric door, lounge, conservatory and bedroom with a further ensuite.
Externally, this attractive property is complimented with neatly maintained grounds which encompass a driveway to the side leading to the rear, a garden to the front and further gardens to the rear including and a patio area and lawned area to enjoy.
The location is ideal being a short drive to the bustling town centre with its array of shops, amenities and cafes and within close proximity to Dalriada School, yet equally a short drive to pick up the A26/ Frosses Road to access the north coast or for commuting to the south.
Entrance Hall:
With wood flooring extending through, wainscotting and telephone point, access to loft (via drop down ladder, partially floored with lighting)
Double doors opening to;
Lounge:
18’1 x 13’0 (5.500m x 3.969m including chimney breast)
Featuring open fireplace with pine surround, metal inset and tiled hearth, bay window, TV point, wall light points
Dining Room:
12’1 x 11’8 (3.677m x 3.567m)
Kitchen/Dining Area:
12’5 x 11’7 (3.773m x 3.540m)
Fitted kitchen including Hotpoint eye level fan assisted oven and grill and separate grill, Blanco 4 ring glass plate electric hob, canopy above with integrated extractor, integrated Hotpoint dishwasher, 1 1/2 bowl sink unit and mixer tap, pelmet above with concealed lighting, partly tiled, corner aspect seating area, dado rail,telephone point, integrated spotlights, vinyl flooring extending through
Utility Room:
9’10 x 5’10 (2.993m x 1.765m)
Complimentary range of units including space for washing machine, stainless steel single sink and drainer unit with mixer tap, partially tiled surround, hotpress (shelved), door to exterior
Bedroom 1:
13’8 x 10’9, 15’8 into recess (4.168m x 3.272m, 4.773m into recess)
With wood effect flooring
Ensuite:
8’4 x 4’6 (2.627m x 1.363m max)
Comprising full wall length shower cubicle with Triton electric shower unit, marine boarding, vanity unit with counter top basin, mixer tap and drawer below, wall mounted mirror with lighting, low flush wc, half panelled marine boarded walls
Bedroom 2:
13’8 x 8’10 (4.164m x 2.682m)
With wood effect flooring
Bedroom 3:
9’9 x 7’4 (2.973m x 2.244m max)
Currently used as a study with wood effect flooring, built in wardrobe (shelved)
Bathroom:
9’9 x 7’10 (2.978m x 2.386m)
Comprising shower cubicle with
Triton shower unit, marine boarding, panelled bath with mixer tap, pedestal wash hand basin with mixer tap, wall mounted mirror and light above, low flush wc, wainscotting, tiled flooring
Stairs down to lower ground floor
Hall:
With access to rear garden, cloaks cupboard, wainscotting, wood effect flooring, glazed door opening to;
Lounge:
14’10 x 9’4 (4.524m including stairs recess x 2.844m)
With chimney breast, fireplace opening with oak surround and raised oak hearth, oak mantel (fireplace chimney not functional), wood effect flooring, French doors opening into;
Conservatory:
10’7 x 10’3 (3.233m x 3.129m max, approximate measurements)
With tiled flooring, double doors opening to garden
Kitchenette:
12’2 x 4’11 (3.710m max x 1.497m)
Range of low level units including Whirlpool Schott Ceran 4 ring electric glass plate hob, space for low level fridge, space for low level freezer, stainless steel single drainer sink unit with mixer tap, splashback panel, panelled walls, boiler cupboard, tiled flooring, door to;
Integral Garage:
23’10 x 18’ (7.267m x 5.490m)
With electric roller door, sink with splashback tiling, storage cupboard, power and light
Bedroom 4:
14’11 x 13’10 (4.555m x 4.224m overall measurements)
With wood effect flooring
Ensuite:
6’9 x 4’9 (2.055m x 1.400m)
With fully tiled walls and comprising corner aspect shower cubicle with Gainsborough Impulse 9.5kw shower unit, pedestal wash hand basin, low flush wc
EXTERIOR FEATURES
Tarmac driveway providing parking to the front and leading to the side, rear and integral garage
Lawned area to the front with flower and shrub beds
Paved access path to front and side
To the rear, paved patio area, lawned area with flower and shrub beds
Greenhouse and gardens shed
Outside lighting
Outside tap
Outside power points
ADDITIONAL FEATURES
Double glazed windows set within PVC finish frames
PVC guttering and downpipes
Oil fired central heating
https://find-energy-certificate.service.gov.uk/energy-certificate/0350-2966-2640-2296-5105































