click to enable zoom
loading...
We didn't find any results
View Roadmap Satellite Hybrid Terrain My Location Fullscreen
Street View

£ 0 to £ 800,000

Other Features
Advanced Search

£ 0 to £ 800,000

Other Features

13 Market Road

£ 180,000 Offers Around
13 Market Road,
add to favorites

Stuart Brewster

Phone:07720 889 180
Email:stuart@lynnandbrewster.com

Contact Me

Property Enquiry

Your search results

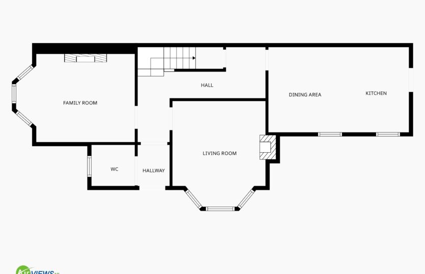
This charming semi‑detached home at 13 Market Road offers generous space, character and convenience in one of Ballymena’s most accessible locations. Set just off Parkway, it places you within easy reach of the town centre, schools, shops and transport links.

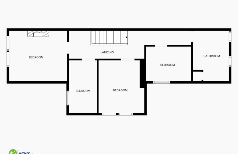
Internally, the property offers two inviting reception rooms and open plan kitchen/diner that provide flexibility for family living, entertaining or simply relaxing at the end of the day. Four well‑proportioned bedrooms give plenty of room for a growing family or for anyone who needs space to work from home. A main bathroom and a separate WC add to the practicality of the layout, while oil‑fired central heating ensures comfort throughout the year.

Externally, the home benefits from a gated driveway leading to a private garden that offers a peaceful spot to unwind and a private courtyard with storage shed.

 

Entrance Porch:

Hardwood door to side with window above, coved ceiling, original tiled flooring, door to ground floor wc and glazed door into hallway

 

Hallway:

Staircase to first floor with under stairs storage, laminated flooring, coved ceiling, radiators

 

Ground Floor wc:

Low flush wc, pedestal wash hand basin, uPVC double glazed window to front, radiator, tiled flooring

 

Lounge:

14’11 x 11’ (4.556m x 3.346m)

uPVC double glazed bay window to front, radiator, laminated flooring, cast iron fireplace with slate hearth and surround, coved ceiling

 

Family Room:

13’11 x 11’11 (4.241m x 3.640m)

uPVC double glazed bay window to side, radiator, laminated flooring, coved ceiling, cast iron fireplace with slate hearth and surround

 

Kitchen/Diner:

18’ x 10’10 (5.489m x 3.302m)

Eye and low level units, work surface with tiled splashback, stainless steel sink with mixer tap, integrated fridge freezer, washing machine and dishwasher, space for duel fuel cooker, extractor hood, recessed ceiling lighting, uPVC double glazed windows to side, uPVC double glazed door to rear, radiator, tiled flooring

 

Landing:

 

Bedroom 1:

12’1 x 10’11 (3.672m x 3.336m)

uPVC double glazed windows to front, radiator, laminated wooden flooring, painted fireplace with tiled inserts

 

Bedroom 2:

11’1 x 10’1 (3.387m x 3.072m)

uPVC double glazed windows to side, laminated flooring

 

Bedroom 3:

9’9 x 8’2 (2.971m x 2.485m)

uPVC double glazed window to side, radiator, laminated flooring

 

Bedroom 4:

11’1 x 5’11 (3.369m x 1.803m)

uPVC double glazed window to front, radiator, laminated flooring

 

Bathroom:

Four piece suite comprising of bath, low flush wc, pedestal wash hand basin, quadrant shower cubicle with Triton shower, built in hot press, part tiled walls, tiled flooring, radiator, uPVC double glazed windows to rear

 

EXTERIOR FEATURES

Enclosed courtyard with outside lighting and tap, pedestrian door to side, access to outside store

 

ADDITIONAL FEATURES

Outside Store:

7’7 x 7’ (2.321m x 2.134m)

 

Outside Store:

7’7 x 4’2 (2.304m x 1.278m)

 

Gated entrance opening into tarmac driveway to front and side

Rear garden laid in lawn

uPVC double glazed windows

Oil heating

Two receptions

Open plan kitchen/diner

Ground floor wc

Four bedrooms

Four piece family bathroom

Chain free

https://find-energy-certificate.service.gov.uk/energy-certificate/9772-3060-8207-3706-1200

Address: 13 Market Road
Town:
State/County:
Zip: BT43 6EL
Country: United Kingdom
Property Id: 52359
Price: £ 180,000 Offers Around
Property Size: 0 ft2
Property Lot Size: 0 ft2
Rooms: 2
Bedrooms: 4
Bathrooms: 1

Similar Listings

compare

87 Rossdale

£ 159,950 Offers Around
3
bedrooms
2
baths
April 2, 2026
compare
Sale agreed

2 Kenbane Crescent

£ 165,000 Offers Around
3
bedrooms
1
baths
April 2, 2026
compare
Sale agreed

29 Carolhill Park

£ 145,000 Offers Around
3
bedrooms
1
baths
March 16, 2026

Compare