Site 2
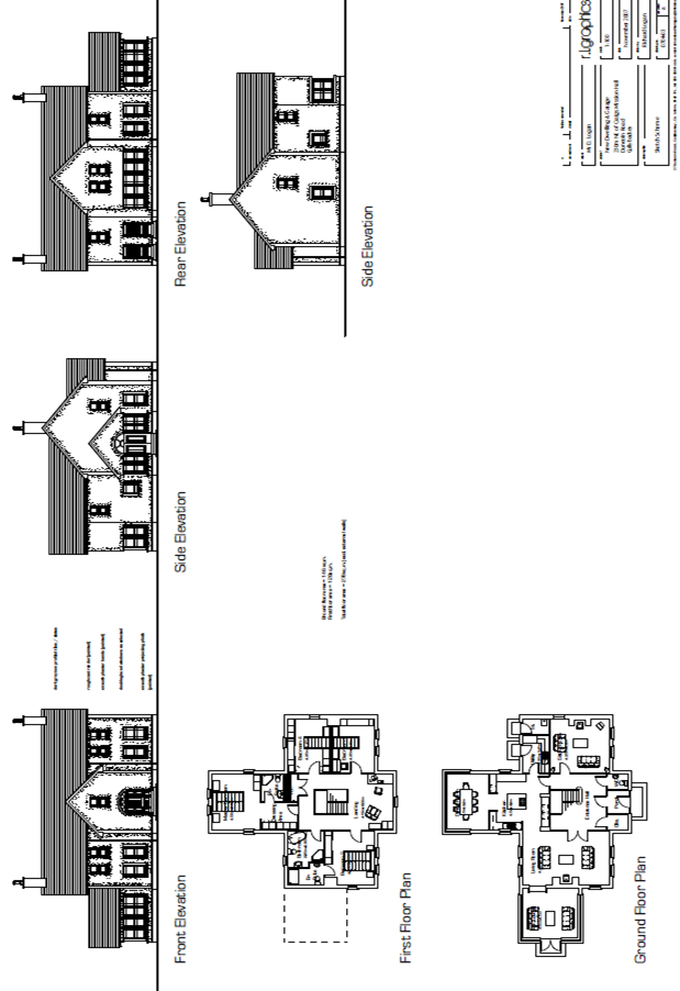
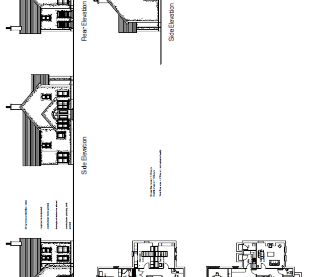
Extending to approximately 0.54 acres (0.22 Ha). The site was initially approved under an outline application, ref no. G/2004/0760/O, dated 6th December 2004 and subsequently approved under a Reserved Matters application on the 13th February 2008, ref no. G/2007/1113RM for a New 2 storey dwelling and detached double garage. Most recently, the site has been approved under a Certificate of Lawfullness of Proposed Use or Development, Aplication no. LA02/2025/0784/CLOPUD, dated 14th October 2025. The proposed plans are for a two storey detached 4 bedroom dwelling extending to 2,992 sq ft (278 sqm).
Site 1 also available
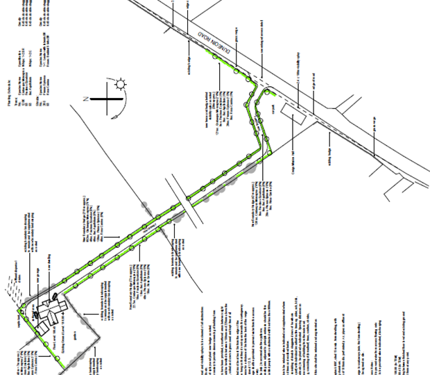
All maps, layouts, plans & outlined areas are for identification purposes only
Land & Property Services Intellectual Property is protected by Crown Copyright and is reproduced with the permission of Land & Property Services under delegated authority from the Controller of Her Majesty’s Stationery Office,
© Crown Copyright and database right (Licence No.2858 & 2015)
For further information contact; Charlie Lynn, 07771958262






