Site 1
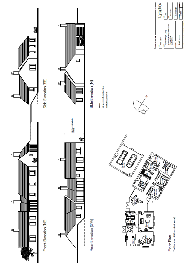
Extending to approximately 0.62 acres (0.25 Ha). The site was initially approved under an outline application, ref no. G/2004/001/O, dated 7th April 2004 and subsequently approved under a Reserved Matters application on the 6th July 2007, ref No. G/2007/3014/RM for the Erection of New Bungalow and Double Garage. Most recently, the site has been approved under a Certificate of Lawfulness of Proposed Use or Development, Application no. LA02/2025/0785/CLOPUD, dated 14th October 2025. The proposed plans are for a single storey 4 bedroom dwelling extending to approximately 2,174 sq ft (202sqm) excluding garage.
Site 2 also available
All maps, layouts, plans & outlined areas are for identification purposes only
Land & Property Services Intellectual Property is protected by Crown Copyright and is reproduced with the permission of Land & Property Services under delegated authority from the Controller of Her Majesty’s Stationery Office,
© Crown Copyright and database right (Licence No.2858 & 2015)
For further information contact; Charlie Lynn, 07771958262








