A beautifully presented detached family home, set within a popular and convenient residential area of Ballymena and offers generous, well‑balanced accommodation ideal for modern living.
The property comprises of an entrance hall with ground floor wc, two spacious reception rooms and a modern fitted kitchen to the ground floor.
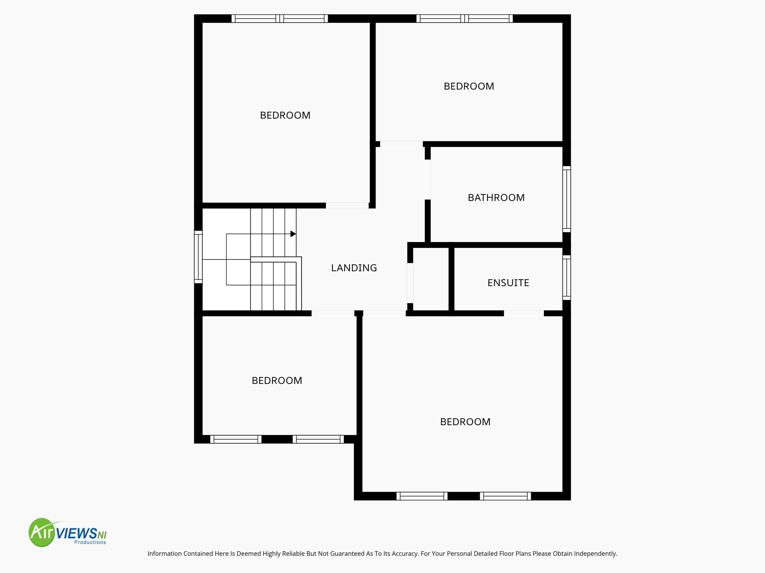
The first floor includes four bedrooms, master with ensuite and a modern bathroom.
Externally, the home benefits from a neatly maintained front garden, a rear garden ideal for outdoor enjoyment and driveway leading to a detached garage.
Situated close to local schools, amenities and transport links, this attractive home represents an excellent opportunity for families seeking both comfort and convenience in a desirable Ballymena location.
Hall:
Hardwood door to front, double glazed side window, radiator, tiled floor, understairs cupboard
Ground Floor wc:
Low flush wc, pedestal wash hand basin, tiled splashback, tiled flooring, uPVC double glazed window to front
Lounge:
17’4 x 12’11 (5.257m x 3.930m)
uPVC double glazed windows to front, radiator, electric fire set in cast iron fireplace with oak surround and tiled hearth
Dining Room:
11’1 x 10’10 (3.378m x 3.293m)
uPVC double glazed patio doors to rear, radiator
Kitchen:
10’10 x 11’0 (3.474m x 3.363m)
Eye and low level units with under unit lighting, 1 1/4 sink with mixer tap, plumbed for washing machine, space for under counter fridge, part tiled walls, tiled flooring, radiator, uPVC double glazed window to rear, hardwood double glazed door to rear
Landing:
uPVC double glazed window to side, access to roof space, hot press
Bedroom 1:
12’11 x 10’5 (3.937m x 3.171m)
uPVC double glazed windows to front, radiator, door into ensuite
Ensuite:
Step in shower cubicle with electric shower, pedestal wash hand basin, low flush wc, part tiled walls, tiled flooring, radiator, uPVC double glazed window to side
Bedroom 2:
11’1 x 10’9 (3.389m x 3.284m)
uPVC double glazed window to rear, radiator
Bedroom 3:
9’4 x 7’8 (2.836m x 2.347m)
uPVC double glazed windows to front, radiator
Bedroom 4:
11’6 x 7’6 (3.514m x 2.281m)
uPVC double glazed windows to rear, radiator
Bathroom:
Bath with telephone mixer tap and power shower over, low flush wc, pedestal wash hand basin, 1/2 tiled walls, tiled flooring, radiator, uPVC double glazed window to side
ADDITIONAL FEATURES
Garage:
18’1 x 12’6 (5.499m x 3.800m)
Roller door to front, window and door to side
Tarmac driveway
Front garden laid in lawn with paved walkway
Rear garden with extended patio, paved walkway and lawn area
Outside light and tap
Oil fired central heating
uPVC double glazed windows
Ground floor wc
Two receptions
https://find-energy-certificate.service.gov.uk/energy-certificate/6100-2261-0422-5697-3463
























